-
Home type
Single family
-
Year built
2005
-
Lot size
9,253 sq ft
-
Price per sq ft
$392
-
Taxes
$13766 / Yr
-
HOA fees
$168 / Annually
-
Last updated
2 days ago
-
Views
4
Questions? Call us: (727) 591-6448
Overview
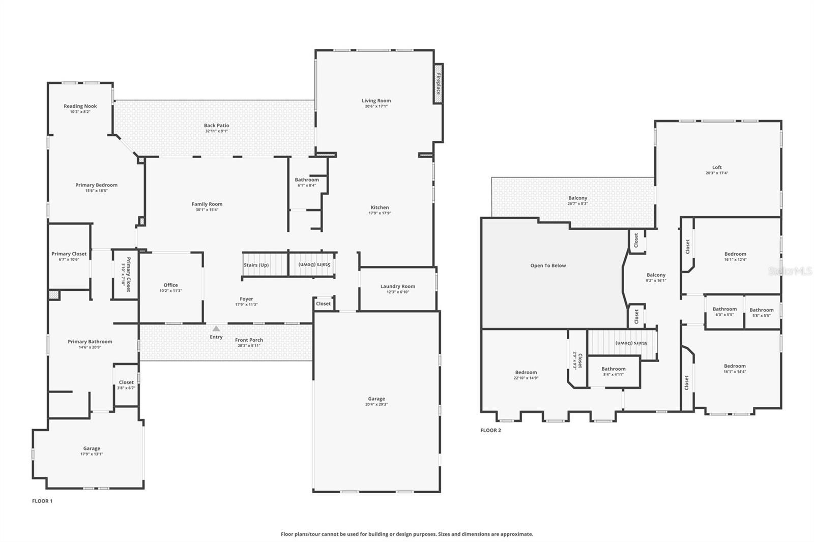
Experience elevated waterfront living in the heart of MiraBay. This beautifully maintained 4-bedroom, 4-bathroom pool home offers a private dock with a boat lift, and direct access to Tampa Bay waterways. Perfect for the ultimate boating lifestyle. Inside, the home showcases a blend of elegance and craftsmanship, featuring hardwood and travertine flooring, soaring ceilings, and custom woodwork with wrought iron detailing. A wall of windows and French doors fills the space with natural light and opens to a stunning outdoor retreat with a travertine pool and spa. The gourmet kitchen is designed to impress, complete with a gas range, ample cabinetry, and seamless flow into the main living areas—ideal for entertaining. The first-floor primary suite offers a private escape with a spa-like en suite bathroom, while a dedicated office provides functional flexibility. Upstairs, a spacious bonus room with a balcony adds versatility, while a charming Juliette balcony brings timeless architectural character. Additional updates include a new roof (2024), freshly painted exterior, and new pool equipment (2025). As a resident of the MiraBay community, enjoy resort-style amenities including a clubhouse restaurant, fitness center, pool, tennis, pickleball, and basketball courts. This is more than a home, it’s a refined waterfront lifestyle.
Interior
Appliances
- Dishwasher, Disposal, Dryer, Microwave, Range, Refrigerator, Washer
Bedrooms
- Bedrooms: 4
Bathrooms
- Total bathrooms: 4
- Full baths: 4
Laundry
- Laundry Room
Cooling
- Central Air
Heating
- Central
Fireplace
- 1, Gas
Features
- Ceiling Fan(s), High Ceilings, Tray Ceiling(s)
Levels
- Two
Size
- 4,070 sq ft
Exterior
Private Pool
- Yes
Patio & Porch
- Covered, Front Porch, Patio, Rear Porch
Roof
- Shingle
Garage
- Attached
- Garage Spaces: 3
- Garage
Carport
- None
Year Built
- 2005
Lot Size
- 0.21 acres
- 9,253 sq ft
Waterfront
- Yes
Water Source
- Public
Sewer
- Public Sewer
Community Info
HOA Information
- Association Fee: $168
- Association Fee Frequency: Annually
- Association Fee Includes: Basketball Court, Clubhouse, Fitness Center, Gated, Park, Pickleball, Playground, Pool, Tennis Court(s), Pool(s)
Taxes
- Annual amount: $13,765.51
- Tax year: 2025
Senior Community
- No
Features
- Clubhouse, Fitness Center, Gated, Golf Carts Permitted, Park, Playground, Pool, Restaurant, Sidewalks, Tennis Court(s)
Location
- City: Apollo Beach
- County/Parrish: Hillsborough
- Township: 31
Listing courtesy of: Holly Putnam, KELLER WILLIAMS SUBURBAN TAMPA, [email protected]
MLS ID: TB8489276
Listings courtesy of Stellar MLS as distributed by MLS GRID. Based on information submitted to the MLS GRID as of May 08, 2026, 02:53pm PDT. All data is obtained from various sources and may not have been verified by broker or MLS GRID. Supplied Open House Information is subject to change without notice. All information should be independently reviewed and verified for accuracy. Properties may or may not be listed by the office/agent presenting the information. Properties displayed may be listed or sold by various participants in the MLS.
MiraBay Real Estate Agent
Want to learn more about MiraBay?
Here is the community real estate expert who can answer your questions, take you on a tour, and help you find the perfect home.
Get started today with your personalized 55+ search experience!
Want to learn more about MiraBay?
Get in touch with a community real estate expert who can answer your questions, take you on a tour, and help you find the perfect home.
Get started today with your personalized 55+ search experience!
Homes Sold:
55+ Homes Sold:
Sold for this Community:
Avg. Response Time:
Community Key Facts
Age Restrictions
- None
Amenities & Lifestyle
- See MiraBay amenities
- See MiraBay clubs, activities, and classes
Homes in Community
- Total Homes: 1,700
- Home Types: Single-Family
Gated
- Yes
Construction
- Construction Dates: 2003 - Present
- Builder: Multiple Builders, Park Square Homes, Bistro Builders
Similar homes in this community
Popular cities in Florida
The following amenities are available to MiraBay - Apollo Beach, FL residents:
- Clubhouse/Amenity Center
- Restaurant
- Fitness Center
- Outdoor Pool
- Tennis Courts
- Basketball Court
- Lakes - Scenic Lakes & Ponds
- Lakes - Boat Accessible
- Parks & Natural Space
- Playground for Grandkids
- Outdoor Patio
- Day Spa/Salon/Barber Shop
- Multipurpose Room
- Boat Launch
There are plenty of activities available in MiraBay. Here is a sample of some of the clubs, activities and classes offered here.
- Dragon Boat Club
- Mariners Club
- Neighborhood Watch
- Ballroom Dancing
- Soccer Club
- Bike Club
- Running Club
- Book Club
- Bridge
- Euchre
- Italian American Club




