-
Home type
Single family
-
Year built
2021
-
Lot size
5,000 sq ft
-
Price per sq ft
$183
-
Taxes
$11025 / Yr
-
HOA fees
$395 / Mo
-
Last updated
2 days ago
-
Views
7
Questions? Call us: (727) 591-6448
Overview
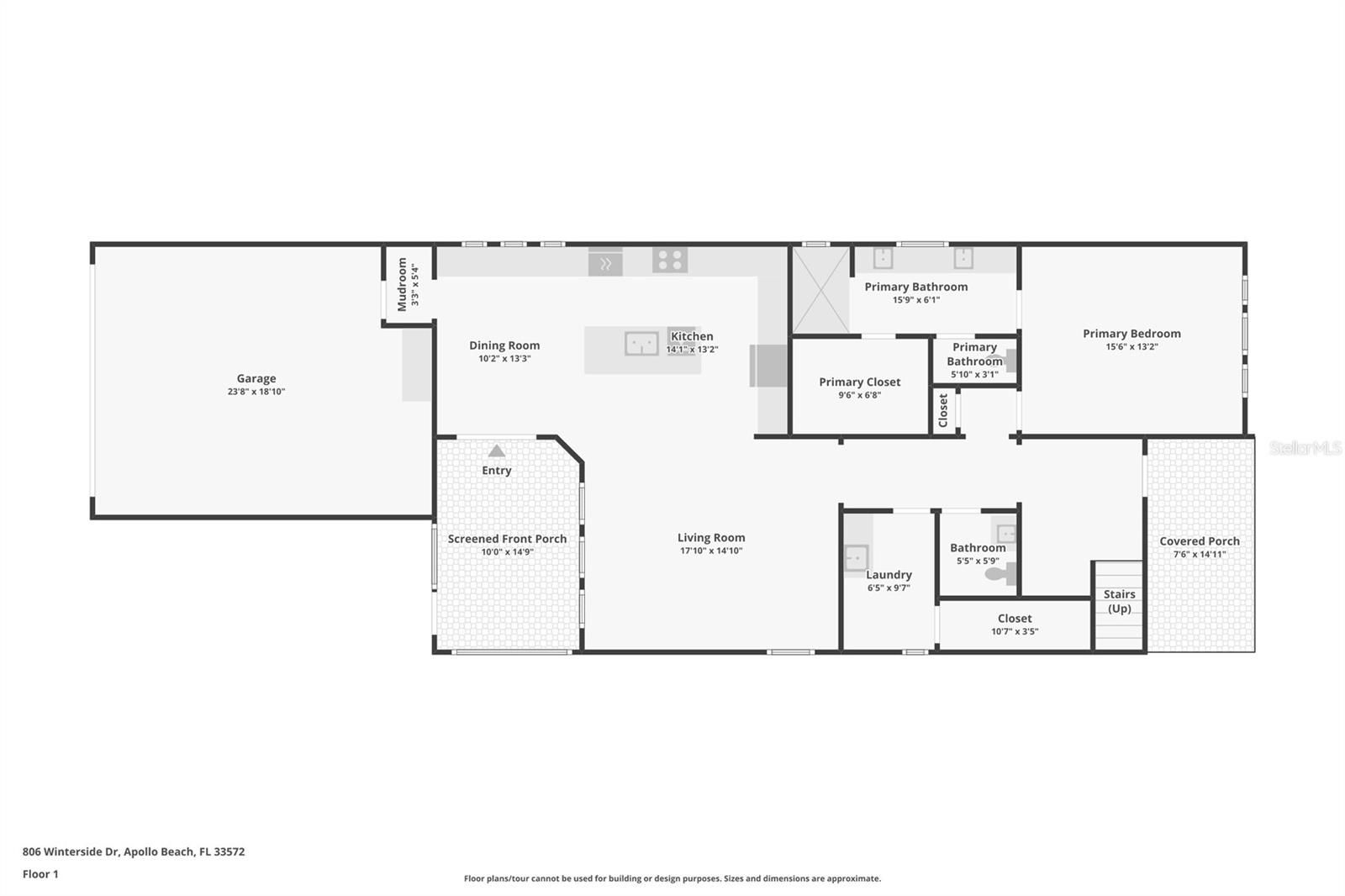
“Coastal living meets thoughtful design and modern comfort in this fabulous in the highly sought-after MiraBay community. This beautifully appointed two story residence offers three bedrooms, two and a half bathrooms, and 2,184 square feet of well designed living space. As you enter the home you are immediately greeted by layout that flows seamlessly throughout the main living areas, creating a clean and cohesive feel. This open concept design is ideal for both everyday living and entertaining, with a spacious family room enhanced by built in surround sound that continues into the primary suite for an elevated living experience. The designer kitchen is truly the heart of the home, featuring stainless steel double ovens, gas appliances, a built in microwave and a thoughtfully designed hidden trash cabinet that keeps everything looking sleek and organized. The kitchen opens effortlessly to the living and dining spaces, making it perfect for hosting gatherings or enjoying quiet nights at home. Upstairs you will find a versatile game room with direct access to a private balcony that overlooks Wolf Creek Preserve. The downstairs primary suite provides a relaxing retreat while the additional bedrooms offer flexibility for family, guests, or a home office. Step outside either in the front or back to enjoy the covered deck and patio, ideal for year round Florida living. Whether you are sipping your morning coffee or entertaining guests, both outdoor spaces extend your living area beautifully. Additional highlights include a two car garage with metal doors and dual openers, a dedicated utility and storage room, attic storage for added convenience, and a tankless water heater for energy efficiency. This home offers the perfect combination of style, functionality, and location in one of Apollo Beach’s most desirable waterfront communities. Experience the MiraBay lifestyle with resort style amenities, waterfront living, and a true sense of community
Interior
Appliances
- Built-In Oven, Convection Oven
Bedrooms
- Bedrooms: 3
Bathrooms
- Total bathrooms: 3
- Half baths: 1
- Full baths: 2
Laundry
- Inside
Cooling
- Central Air
Heating
- Electric
Features
- Ceiling Fan(s), Kitchen/Family Room Combo, Open Floorplan, Solid Surface Counters, Solid-Wood Cabinets, Walk-In Closet(s)
Levels
- Two
Size
- 2,184 sq ft
Exterior
Private Pool
- No
Roof
- Shingle
Garage
- Attached
- Garage Spaces: 2
Carport
- None
Year Built
- 2021
Lot Size
- 0.11 acres
- 5,000 sq ft
Waterfront
- No
Water Source
- Public
Sewer
- Public Sewer
Community Info
HOA Information
- Association Fee: $395
- Association Fee Frequency: Monthly
- Association Fee 2: $190
Taxes
- Annual amount: $11,025.00
- Tax year: 2025
Senior Community
- No
Features
- Clubhouse, Deed Restrictions, Fitness Center, Gated, Park, Playground, Pool, Sidewalks
Location
- City: Apollo Beach
- County/Parrish: Hillsborough
- Township: 31
Listing courtesy of: Mickey Arruda, KNOWN REAL ESTATE LLC, 813-787-4451
MLS ID: TB8496227
Listings courtesy of Stellar MLS as distributed by MLS GRID. Based on information submitted to the MLS GRID as of May 29, 2026, 02:14pm PDT. All data is obtained from various sources and may not have been verified by broker or MLS GRID. Supplied Open House Information is subject to change without notice. All information should be independently reviewed and verified for accuracy. Properties may or may not be listed by the office/agent presenting the information. Properties displayed may be listed or sold by various participants in the MLS.
MiraBay Real Estate Agent
Want to learn more about MiraBay?
Here is the community real estate expert who can answer your questions, take you on a tour, and help you find the perfect home.
Get started today with your personalized 55+ search experience!
Want to learn more about MiraBay?
Get in touch with a community real estate expert who can answer your questions, take you on a tour, and help you find the perfect home.
Get started today with your personalized 55+ search experience!
Homes Sold:
55+ Homes Sold:
Sold for this Community:
Avg. Response Time:
Community Key Facts
Age Restrictions
- None
Amenities & Lifestyle
- See MiraBay amenities
- See MiraBay clubs, activities, and classes
Homes in Community
- Total Homes: 1,700
- Home Types: Single-Family
Gated
- Yes
Construction
- Construction Dates: 2003 - Present
- Builder: Multiple Builders, Park Square Homes, Bistro Builders
Similar homes in this community
Popular cities in Florida
The following amenities are available to MiraBay - Apollo Beach, FL residents:
- Clubhouse/Amenity Center
- Restaurant
- Fitness Center
- Outdoor Pool
- Tennis Courts
- Basketball Court
- Lakes - Scenic Lakes & Ponds
- Lakes - Boat Accessible
- Parks & Natural Space
- Playground for Grandkids
- Outdoor Patio
- Day Spa/Salon/Barber Shop
- Multipurpose Room
- Boat Launch
There are plenty of activities available in MiraBay. Here is a sample of some of the clubs, activities and classes offered here.
- Dragon Boat Club
- Mariners Club
- Neighborhood Watch
- Ballroom Dancing
- Soccer Club
- Bike Club
- Running Club
- Book Club
- Bridge
- Euchre
- Italian American Club




