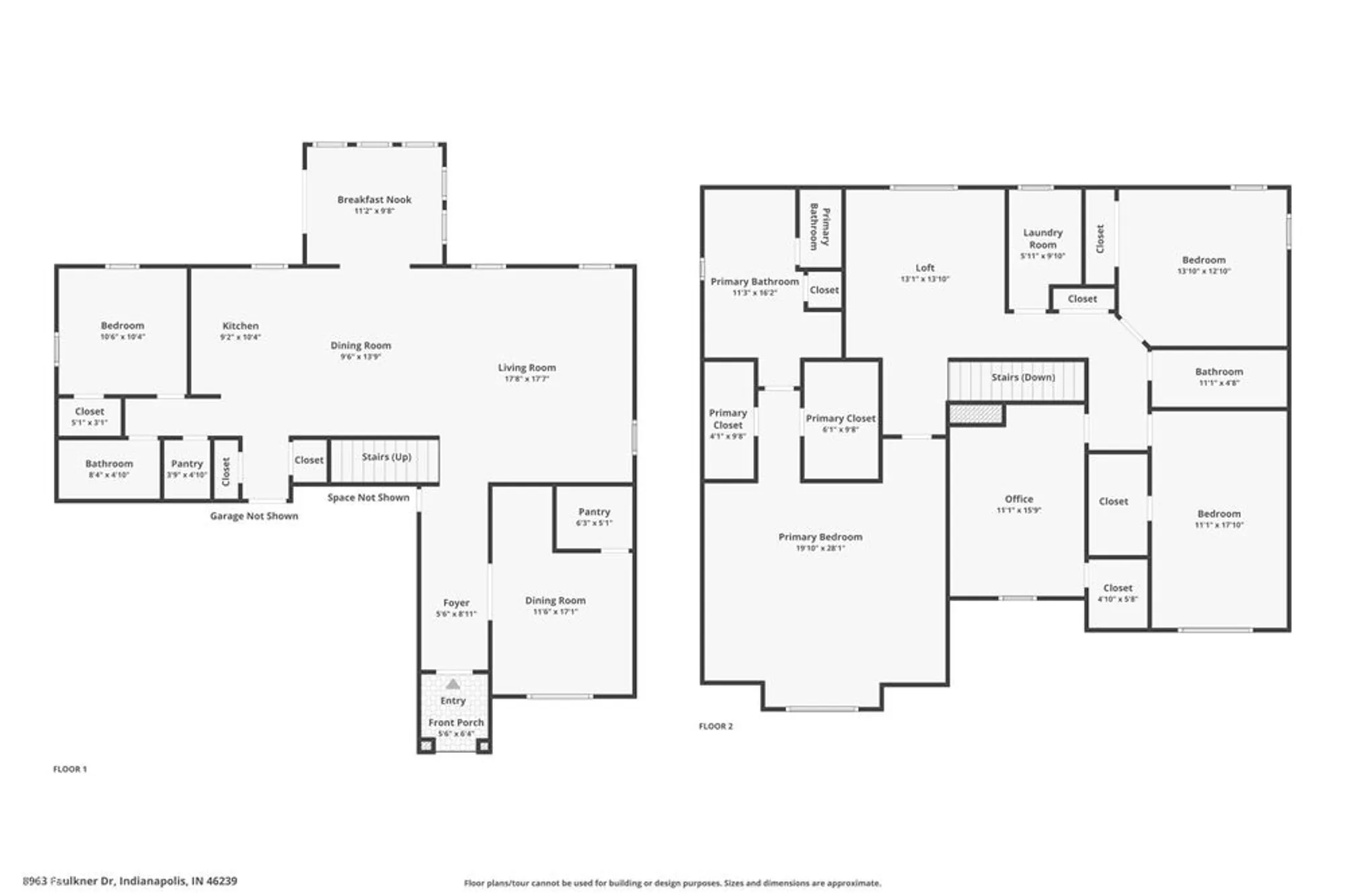
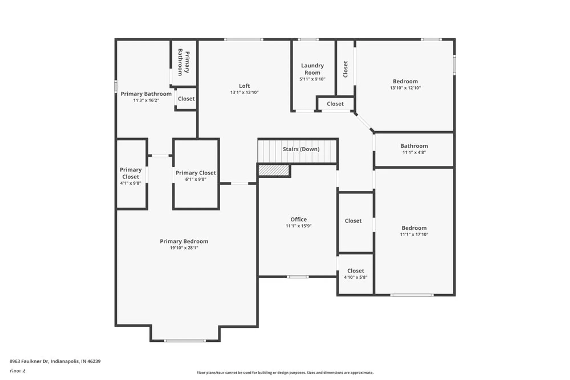
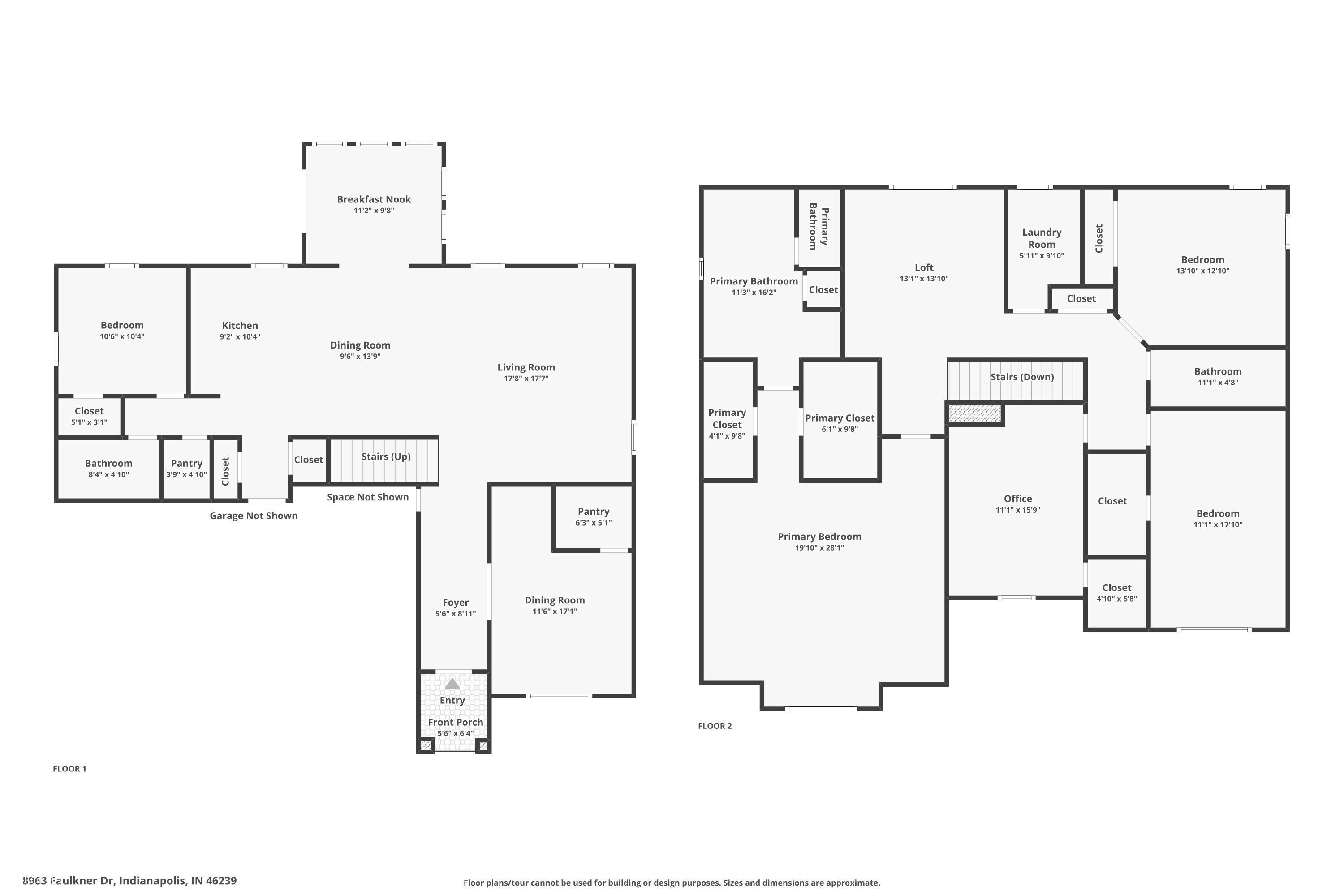
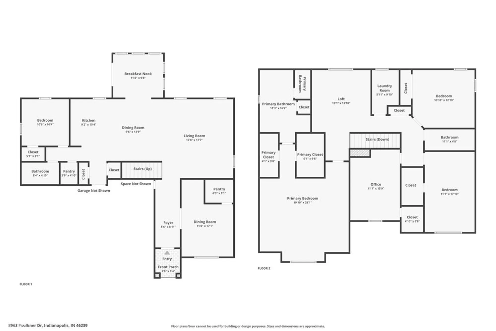
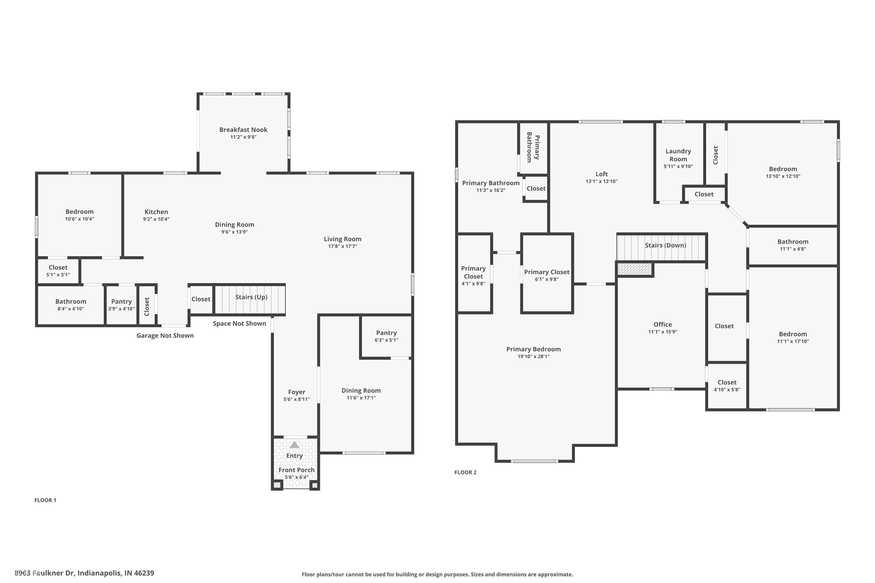
- 5 beds
- 3 baths
- 3,143 sq ft
8963 Faulkner Dr, Indianapolis, IN, 46239
Community: Village at New Bethel
-
Home type
Single family
-
Year built
2021
-
Lot size
8,886 sq ft
-
Price per sq ft
$132
-
Taxes
$3884 / Yr
-
HOA fees
$270 / Semi-Annually
-
Last updated
Today
-
Views
6
Questions? Call us: (463) 444-8543
Overview
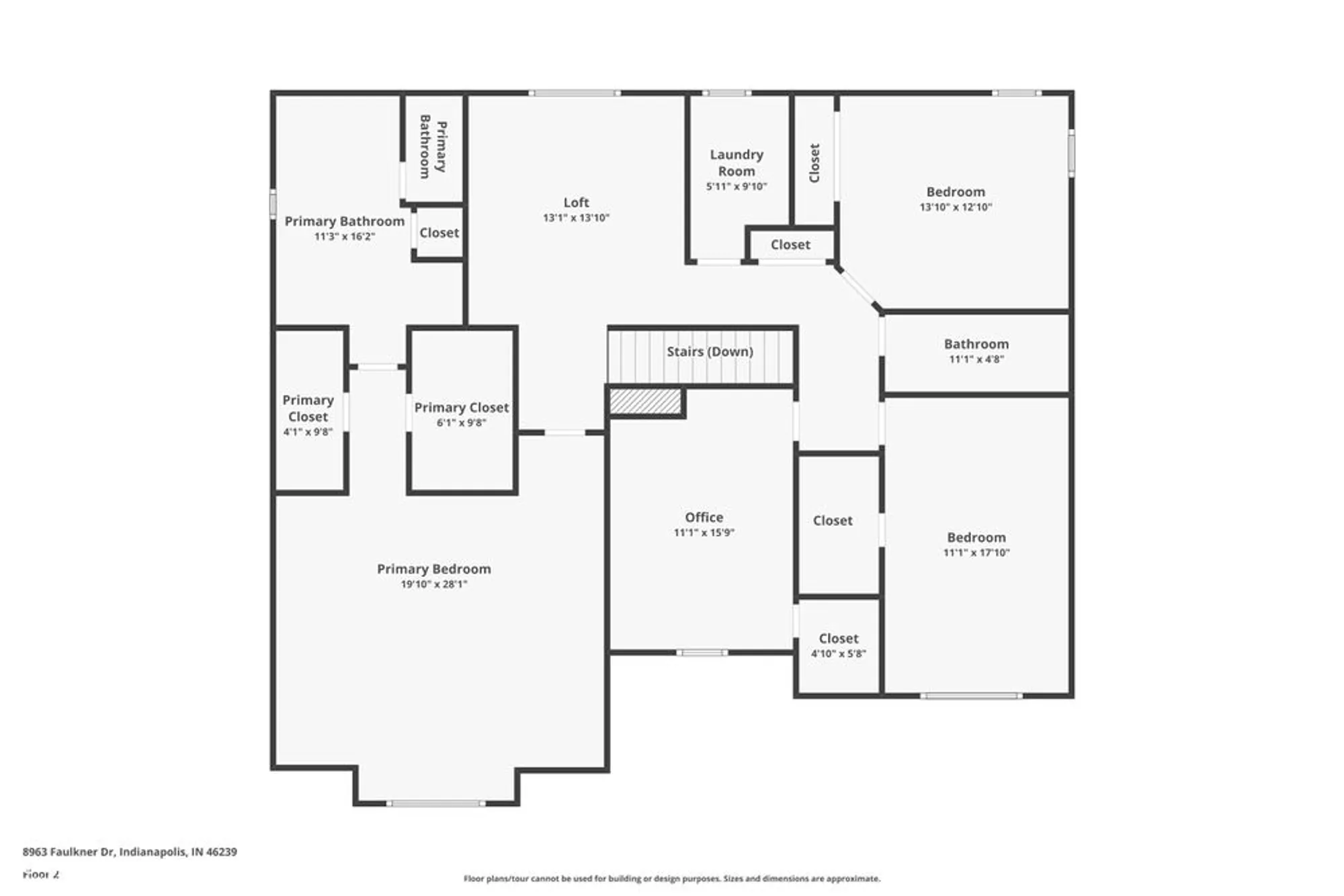
Welcome to 8963 Faulkner Drive! Set on a corner lot and built by D.R. Horton in 2021, this home pairs stylish design with smart, flexible spaces. You're greeted by luxurious LVP flooring spanning the main level and an open floorplan that flows effortlessly for gatherings or quiet evenings. A cozy front den offers work-from-home convenience and can function as a sixth bedroom when needed, while a true main-level bedroom sits next to a full bath-ideal for guests or multigenerational living. The gourmet kitchen boasts quartz countertops and opens to both the living room and a sunroom drenched in natural light, perfect for morning coffee. Upstairs, a versatile loft anchors four bedrooms, including a large primary suite with a spa-like bath featuring separate vanities and a beautifully tiled walk-in shower; the laundry room is conveniently located on this level as well. To top it off, the neighborhood offers walking trails throughout, a pool, parks, and a basketball court.
Interior
Appliances
- Dishwasher, Dryer, Disposal, MicroHood, Microwave, Gas Oven, Refrigerator, Tankless Water Heater, Washer, Water Softener Owned
Bedrooms
- Bedrooms: 5
Bathrooms
- Total bathrooms: 3
- Full baths: 3
Laundry
- Upper Level
Cooling
- Central Air, Zoned
Heating
- Natural Gas
Fireplace
- None
Features
- Bedroom on Main Level, Living/Dining Room, Updated Kitchen, Stall Shower, Dual Sinks, Walk-In Closet(s), Programmable Thermostat, Smart Thermostat, Attic Access, Kitchen Island, Paddle Fan, Wired for Data, Pantry
Levels
- Two
Size
- 3,143 sq ft
Exterior
Private Pool
- No
Garage
- Garage Spaces: 3
- Attached
Carport
- None
Year Built
- 2021
Lot Size
- 0.2 acres
- 8,886 sq ft
Waterfront
- No
Water Source
- Public
Sewer
- Municipal Sewer Connected
Community Info
HOA Fee
- $270
- Frequency: Semi-Annually
- Includes: Basketball Court, Maintenance, Park, Playground, Pool, Snow Removal, Trail(s)
Taxes
- Annual amount: $3,884.00
- Tax year: 2024
Senior Community
- No
Location
- City: Indianapolis
- County/Parrish: Marion
- Township: Franklin
Listing courtesy of: Donald Lawless, F.C. Tucker Company Listing Agent Contact Information: [email protected]
MLS ID: 22072891
Based on information submitted to the MLS GRID as of Nov 14, 2025, 01:20pm PST. All data is obtained from various sources and may not have been verified by broker or MLS GRID. Supplied Open House Information is subject to change without notice. All information should be independently reviewed and verified for accuracy. Properties may or may not be listed by the office/agent presenting the information.
Village at New Bethel Real Estate Agent
Want to learn more about Village at New Bethel?
Here is the community real estate expert who can answer your questions, take you on a tour, and help you find the perfect home.
Get started today with your personalized 55+ search experience!
Want to learn more about Village at New Bethel?
Get in touch with a community real estate expert who can answer your questions, take you on a tour, and help you find the perfect home.
Get started today with your personalized 55+ search experience!
Homes Sold:
55+ Homes Sold:
Sold for this Community:
Avg. Response Time:
Community Key Facts
Age Restrictions
- None
Amenities & Lifestyle
- See Village at New Bethel amenities
- See Village at New Bethel clubs, activities, and classes
Homes in Community
- Total Homes: 500
- Home Types: Single-Family, Attached
Gated
- Yes
Construction
- Construction Dates: 2006 - Present
- Builder: Westport Homes
Similar homes in this community
Popular cities in Indiana
The following amenities are available to Village at New Bethel - Indianapolis, IN residents:
- Outdoor Pool
- Walking & Biking Trails
- Basketball Court
- Lakes - Scenic Lakes & Ponds
- Parks & Natural Space
- Outdoor Patio
There are plenty of activities available in Village at New Bethel. Here is a sample of some of the clubs, activities and classes offered here.
- Basketball
- Holiday Parties
- Social Events
- Swimming
- Walking




