Call us at (385) 455-0932 to learn more about this community
Brookhaven Villas - Lehi, UT
- Prices starting at: Mid $600ks
- Total homes: 120
- Home types: Single-Family
- New or resale: Resale Homes Only
- Builder: Brookhaven Villas Inc
- Years built: 2004 - 2015
- Age restrictions: 55+
- Gated: No
- Activity director: No
About Brookhaven Villas
Brookhaven Villas is a 55+ community in scenic Lehi, Utah. This active adult neighborhood features beautiful single-family homes that offer spacious floor plans with energy efficient designs. Homeowners will enjoy the safety and security of living in Brookhaven Villas. They will also enjoy maintenance-free living thanks to the homeowners' association (HOA) covering tedious exterior home chores. Brookhaven Villas offers a great line up of amenities at the elegant clubhouse that's the perfect gathering place for social events with friends and family.
Located in Lehi, UT, residents are never far from recreation, shopping, and dining options. Big-city attractions and the Salt Lake City Airport can also be reached within a short drive from the community's gates.
Brookhaven Villas Amenities
The elegant clubhouse is the central hub of physical and social activity in Brookhaven Villas. Residents can stay in shape by working out in the exercise room or swimming a few laps in the indoor pool. After an invigorating workout, they can relax in the spa. Homeowners can meet with friends in the lounge area to watch T.V., listen to music, or just socialize with neighbors. A catering kitchen and multi-purpose room are perfect for hosting small or large parties.
Outdoor amenities are superb as well. Residents can challenge neighbors to a friendly game of horseshoes or mingle on the patio. They can show off their grilling skills in the BBQ and picnic areas during the warmer months of the year. A beautiful community garden, scenic walking trails, and plenty of parks and natural space are the perfect setting for enjoying events outside.
Brookhaven Villas Homes & Real Estate
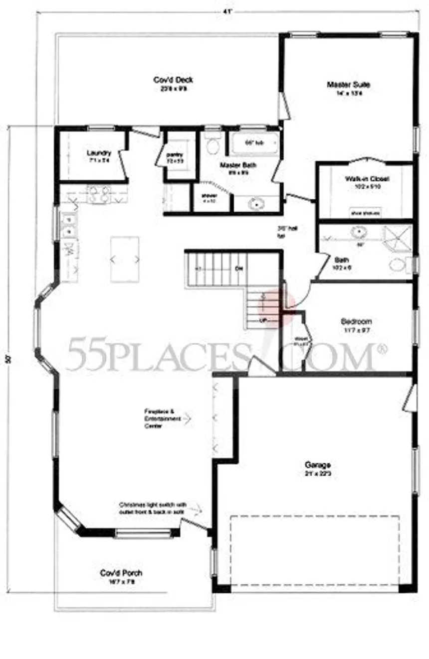
Construction of Brookhaven Villas began in 2004 and has a total of 120 single-family homes. Brookhaven Villas offers homebuyers five unique floor plans that are perfect for the active adult. These detached homes offer 1,489 to 1,950 square feet of living space. They have two bedrooms, two bathrooms, and an attached two-car garage. These homes feature one-story living, upgraded designer kitchens, crown molding, spacious living areas, full basements, large walk-in closets, insulated garages, and energy-efficient designs.
Residents enjoy a carefree lifestyle in Brookhaven Villas. An affordable homeowners' association fee covers lawn maintenance, snow shoveling, common grounds maintenance, security, and use of recreational facilities.
Brookhaven Villas Lifestyle
Homeowners have more time to do fun things thanks to the maintenance-free homeownership in Brookhaven Villas. Residents can participate in community parties, activities, and events. They can host events in the clubhouse or get-togethers in the BBQ area. Green thumbs can share their interests while spending time in the gardens. Leisurely strolls are made possible with the scenic walking and biking trails surrounding the neighborhood.
Area
Brookhaven Villas is ideally situated in Lehi, Utah. Residents are near major roads like Interstate 15, which makes driving across town a breeze. Everyday conveniences are within driving distance from the community, such as Cabela's, Outlets at Traverse Mountain, Lehi Legacy Center, Burger King, and Smith's. There are plenty of parks and outdoor spaces for recreational activities such as M. Timpanogos, Mill Canyon Peak, Twin Peaks, and Mahogany Mountain. Salt Lake City and its international airport can be reached in about 30 minutes. Brookhaven Villas is a great 55+ community in Utah with plenty to offer active adult homebuyers.
Brookhaven Villas Models
Page
Showing 6 Models with All Sizes for All Collections
Page
Brookhaven Villas Amenities
The following amenities are available to Brookhaven Villas - Lehi, UT residents:
- Clubhouse/Amenity Center
- Fitness Center
- Indoor Pool
- Walking & Biking Trails
- Horseshoe Pits
- Gardening Plots
- Parks & Natural Space
- Demonstration Kitchen
- Outdoor Patio
- Steam Room/Sauna
- Picnic Area
- Multipurpose Room
- Lounge
Brookhaven Villas Clubs, Groups, Activities & Classes
There are plenty of activities available in Brookhaven Villas. Here is a sample of some of the clubs, activities and classes offered here.
- BBQs
- Gardening
- Horseshoes
- Planned Social Events
Brookhaven Villas
Homes for Sale in Brookhaven Villas
We don't see any homes available at this time, but call one of our local community experts to get more information on availability in this community. (385) 455-0932
Homes for Sale in Brookhaven Villas
We don't see any homes available at this time, but call one of our local community experts to get more information on availability in this community. (385) 455-0932
The listings data displayed on this medium comes in part from the Real Estate Information Network Inc. (REIN) and has been authorized by participating listing Broker Members of REIN for display. REIN's listings are based upon Data submitted by its Broker Members, and REIN therefore makes no representation or warranty regarding the accuracy of the Data. All users of REIN's listings database should confirm the accuracy of the listing information directly with the listing agent.
© 2026 REIN. REIN's listings Data and information is protected under federal copyright laws. Federal law prohibits, among other acts, the unauthorized copying or alteration of, or preparation of derivative works from, all or any part of copyrighted materials, including certain compilations of Data and information. COPYRIGHT VIOLATORS MAY BE SUBJECT TO SEVERE FINES AND PENALTIES UNDER FEDERAL LAW.
REIN updates its listings on a daily basis. Data last updated: Mar 09, 2026.
This application does not include information on all of the properties available for sale at this time.
Models in Brookhaven Villas
2 Beds
2 Baths
1,489 Sq Ft
2-Car Garage
2 Beds
2 Baths
1,505 Sq Ft
2-Car Garage
Amenities
- Clubhouse/Amenity Center
- Fitness Center
- Indoor Pool
- Walking & Biking Trails
- Horseshoe Pits
- Gardening Plots
Lifestyle
- BBQs
- Gardening
- Horseshoes
- Planned Social Events
Reviews
Brookhaven Villas FAQs
The average price of homes in Brookhaven Villas is around $730,000.
In Brookhaven Villas, there are single-family homes built between 2004 and 2015.
At Brookhaven Villas, you can enjoy amenities such as the Clubhouse/Amenity Center, Fitness Center, Indoor Pool, Walking & Biking Trails, Horseshoe Pits, Gardening Plots, Parks & Natural Space, Demonstration Kitchen, Outdoor Patio, and Steam Room/Sauna.
Yes! Residents enjoy an active lifestyle by participating in a variety of social clubs and special interest groups. These include BBQs, Gardening, Horseshoes, and Planned Social Events.
I would like to request more info
The information on this page is aggregated from third-party sources and presented as-is for your convenience. It has not been verified or approved by the developer or homeowners association. 55places.com does not guarantee the accuracy or completeness of information or assume any liability for its use. 55places.com is not affiliated with the builder, developer, or HOA of any communities displayed on this website.
55places.com is not affiliated with the developer(s) or homeowners association of Brookhaven Villas. The information you submit is distributed to a 55places.com Partner Agent, who is a licensed real estate agent. The information regarding Brookhaven Villas has not been verified or approved by the developer or homeowners association. Please verify all information prior to purchasing. 55places.com is not responsible for any errors regarding the information displayed on this website.
The listings data displayed on this medium comes in part from the Real Estate Information Network Inc. (REIN) and has been authorized by participating listing Broker Members of REIN for display. REIN's listings are based upon Data submitted by its Broker Members, and REIN therefore makes no representation or warranty regarding the accuracy of the Data. All users of REIN's listings database should confirm the accuracy of the listing information directly with the listing agent.
© 2026 REIN. REIN's listings Data and information is protected under federal copyright laws. Federal law prohibits, among other acts, the unauthorized copying or alteration of, or preparation of derivative works from, all or any part of copyrighted materials, including certain compilations of Data and information. COPYRIGHT VIOLATORS MAY BE SUBJECT TO SEVERE FINES AND PENALTIES UNDER FEDERAL LAW.
REIN updates its listings on a daily basis. Data last updated: Mar 09, 2026.
This application does not include information on all of the properties available for sale at this time.




