Call us at (720) 927-8508 to learn more about this community
Anthem Ranch - Broomfield, CO
3.0
- Price range: Low $700ks - Mid $1Ms
- Total homes: 1,300 (7 for sale)
- Home types: Single-Family
- New or resale: Resale Homes Only
- Builders: Del Webb, David Weekley Homes, Toll Brothers, Pulte Homes
- Years built: 2006 - 2018
- Age restrictions: 55+
- Gated: No
- Activity director: Yes
About Anthem Ranch
Anthem Ranch is an active adult community in Broomfield, Colorado, between Boulder and Denver, where residents enjoy magnificent views of the Rocky Mountain foothills. World-class amenities, abundant outdoor recreation and a finely crafted lifestyle have made Anthem Ranch a hit with active adults. Residents enjoy living in low-maintenance homes because it allows them to live life to fullest within the community. Anthem Ranch offers an environment when it's easy to meet new friends and neighbors who share the same interests and hobbies.
Anthem Ranch Amenities
Anthem Ranch in Broomfield offers a bountiful lineup of amenities that cater to the recreational, social and hobby requirements of mature adults. The Aspen Lodge is the central hub for all community activity and is available exclusively to its active adult residents. The 32,000 square-foot facility boasts a rich array of indoor amenities such as a grand ballroom, hobby and craft studios, a movie theater, card rooms, billiards hall and an indoor lap pool with spa. The fitness center in the Aspen Lodge offers the latest state-of-the-art cardiovascular and weight training equipment. It also includes an indoor walking track and an aerobics and dance studio. On-site trainers and instructors are there to insure that residents can maximize their workout with a variety of training programs and fitness classes.
Outdoor amenities at Anthem Ranch in Broomfield include a resort-style pool with spa, and bocce ball, shuffleboard, pickleball and tennis courts. Plus, Anthem Ranch includes a staggering 48 miles of scenic walking and biking trails that connect with the Broomfield regional trail. A 90-acre community park that includes a picnic pavilion, fishing lake, basketball courts and softball fields is just a short walk away.
Anthem Ranch Homes & Real Estate
Located within the master-planned community of Anthem, Del Webb began construction of Anthem Ranch in 2006 and Toll Bros acquired it in 2013. Upon completion, it will be home to 1,300 residences. Homebuyers can select from a wide assortment of new construction and pre-owned resale homes at Anthem Ranch in Broomfield. The builders offer a distinctive lineup of luxurious single-family homes that range in size from 1,200 to over 2,800 square feet.
All of the homes are ranch-style and include a minimum of two bedrooms, two bathrooms, and two-car garages. Larger homes offer up to four bedrooms and three-car garages. The homes in Anthem Ranch include some of the latest sought after design features such as expansive great rooms, gourmet kitchens and ample outdoor living space. Scenic views of the neighboring Rocky Mountain foothills and Longs Peak are visible from many of the homes throughout this active adult community.
David Weekley Homes joined the community with Encore at Anthem Ranch, which offers four distinct floor plans, homes range from 1,609 to 1,842 square feet and include two to four bedrooms, two to four bathrooms, and an attached two-car garage. Each home includes custom upgrade options that include covered porches, rear decks, wall fireplaces, and wet bars.
Anthem Ranch Lifestyle
The community encourages the residents of Anthem Ranch to realize their full potential by promoting an active lifestyle. Whether you are looking to maintain a physically or socially active lifestyle, there is something for everyone here. There are over 50 clubs and interest groups that include everything from crafts, card playing and book discussions to hiking, golfing and skiing clubs. Other favorite clubs at Anthem Ranch in Colorado include model railroading, Red Hat Society, dancing, tennis, scrapbooking and more. An activities director is continually organizing a long list of fun events, activities and social outings. Residents can partake in fun activities such as neighborhood picnics, group ski trips and bus tours to art museums or sporting events in Denver.
Area
Anthem Ranch in Broomfield, Colorado is ideally located within 15 to 20 miles of Boulder and downtown Denver. It is a recreation and adventure lover's paradise surrounded by mountains, ski resorts, scenic hiking and biking trails, boating lakes and golf courses. Plus the culture, entertainment and shopping in Boulder and Denver is just a short drive away. Denver International Airport is only 20 minutes and fun places like Rocky Mountain National Park, Fort Collins and Breckenridge are accessible in less than 90 minutes. Anthem Ranch's community is located adjacent to Pulte Homes' Anthem Highlands all-ages community, making it a great place to settle for grandparents who want to be near their children and grandchildren.
Anthem Ranch Models
Page
Showing 24 Models with All Sizes for All Collections
Page
Anthem Ranch Amenities
The following amenities are available to Anthem Ranch - Broomfield, CO residents:
- Clubhouse/Amenity Center
- Multipurpose Room
- Fitness Center
- Indoor Pool
- Outdoor Pool
- Aerobics & Dance Studio
- Indoor Walking Track
- Arts & Crafts Studio
- Ballroom
- Computers
- Library
- Billiards
- Walking & Biking Trails
- Tennis Courts
- Pickleball Courts
- Bocce Ball Courts
- Shuffleboard Courts
- Horseshoe Pits
- Softball/Baseball Field
- Lakes - Fishing Lakes
- Outdoor Amphitheater
- Parks & Natural Space
- Playground for Grandkids
- Demonstration Kitchen
- Outdoor Patio
- Picnic Area
- Locker Rooms
- Spa
- Lounge
Anthem Ranch Clubs, Groups, Activities & Classes
There are plenty of activities available in Anthem Ranch. Here is a sample of some of the clubs, activities and classes offered here.
- Active Yoga
- Anthem Aquafit
- Anthem Bodies in Balance
- AR Veterans
- Baker's Dozen Men's Coffee Group
- Bocce Buffalos
- Bodies in Balance
- Card Making Class
- Cardio/Strength Classes
- Chinese Hong Kong Mah Jongg
- Concert Goers
- Couples Bridge
- Craft Class
- Cribbage Club
- Drop-in Tennis
- Duplicate Bridge
- Euchre
- Fitness Foundations
- Gardening Club
- Gentle Seated Yoga
- Gentleman's Book Club
- Grow Good Health
- Gourmet Dinners
- Guys and Dolls (singles club)
- Hiking Club
- Ladies Billiards
- Ladies Card Game Day
- Ladies Who Lunch
- Mah Jongg Club
- Men's Billiards
- Men's Pick-Up Basketball
- Men's Who Lunch
- Morning Canasta
- Motorcycle Riders Group
- Pan Cards
- Personal Writing Group
- Pickleball
- Pilates
- Pinochle Club
- Red Hat Society
- Scrapbooking
- Singers
- Single Malt Society
- Skiing
- Social Bridge
- Snowshoe
- Tappers
- Table Tennis
- Vegas Night
- Walking
- Women's Seminar
- Yacht Club
- Zia Club
- Zumba
Anthem Ranch
If you are moving here for the typical Del Webb experience than beware. Yes Covid has shut down all our activities since March but they refuse to discount our HOA dues which is pricey. Check into the CCMC association. They are in most Del Webb communities but in ours they do next to nothing for entertainment. Compare it to the Del Webb SunCity Shadow Hills in Indio, California where CCMC has many day trips, activities and lots of fun. Before you buy talk to the neighbors.
This is a very amazing place. The clubhouse is gorgeous but the view it has over the park and with the mountains in the background is what gets you. Indoor/outdoor pool and the homes are very nice. Highly recommend checking this out.
Homes for Sale in Anthem Ranch
We don't see any homes available at this time, but call one of our local community experts to get more information on availability in this community. (720) 927-8508
Homes for Sale in Anthem Ranch
We don't see any homes available at this time, but call one of our local community experts to get more information on availability in this community. (720) 927-8508
The listings data displayed on this medium comes in part from the Real Estate Information Network Inc. (REIN) and has been authorized by participating listing Broker Members of REIN for display. REIN's listings are based upon Data submitted by its Broker Members, and REIN therefore makes no representation or warranty regarding the accuracy of the Data. All users of REIN's listings database should confirm the accuracy of the listing information directly with the listing agent.
© 2026 REIN. REIN's listings Data and information is protected under federal copyright laws. Federal law prohibits, among other acts, the unauthorized copying or alteration of, or preparation of derivative works from, all or any part of copyrighted materials, including certain compilations of Data and information. COPYRIGHT VIOLATORS MAY BE SUBJECT TO SEVERE FINES AND PENALTIES UNDER FEDERAL LAW.
REIN updates its listings on a daily basis. Data last updated: Feb 21, 2026.
This application does not include information on all of the properties available for sale at this time.
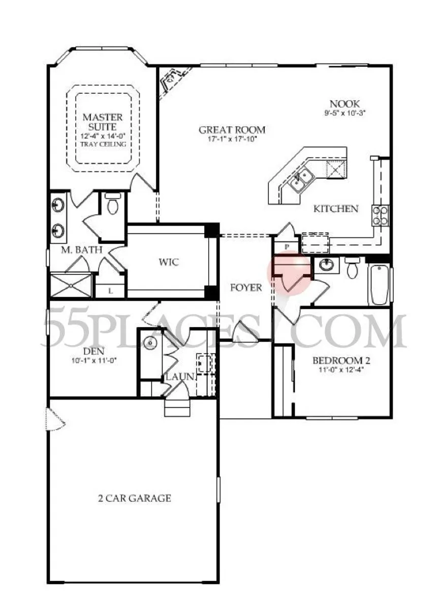
Models in Anthem Ranch
2 Beds
2 Baths
1,200 Sq Ft
2-Car Garage
2 Beds
2 Baths
1,557 Sq Ft
2-Car Garage
Amenities
- Clubhouse/Amenity Center
- Multipurpose Room
- Fitness Center
- Indoor Pool
- Outdoor Pool
- Aerobics & Dance Studio
Lifestyle
- Active Yoga
- Anthem Aquafit
- Anthem Bodies in Balance
- AR Veterans
- Baker's Dozen Men's Coffee Group
- Bocce Buffalos
Reviews
Anthem Ranch FAQs
The average price of homes in Anthem Ranch is around $990,634.
In Anthem Ranch, there are single-family homes built between 2006 and 2018.
At Anthem Ranch, you can enjoy amenities such as the Clubhouse/Amenity Center, Multi-Purpose/Meeting Rooms, Fitness Center, Indoor Pool, Outdoor Pool, Aerobics & Dance Studio, Indoor Walking Track, Arts & Crafts Studio, Ballroom, and Computers.
Yes! The full-time activities director will help plan events for various social clubs and special interest groups. These include Active Yoga, Anthem Aquafit, Anthem Bodies in Balance, AR Veterans, Baker's Dozen Men's Coffee Group, Bocce Buffalos, Bodies in Balance, Card Making Class, Cardio/Strength Classes, and Chinese Hong Kong Mah Jongg.
I would like to request more info
The information on this page is aggregated from third-party sources and presented as-is for your convenience. It has not been verified or approved by the developer or homeowners association. 55places.com does not guarantee the accuracy or completeness of information or assume any liability for its use. 55places.com is not affiliated with the builder, developer, or HOA of any communities displayed on this website.
55places.com is not affiliated with the developer(s) or homeowners association of Anthem Ranch. The information you submit is distributed to a 55places.com Partner Agent, who is a licensed real estate agent. The information regarding Anthem Ranch has not been verified or approved by the developer or homeowners association. Please verify all information prior to purchasing. 55places.com is not responsible for any errors regarding the information displayed on this website.
The listings data displayed on this medium comes in part from the Real Estate Information Network Inc. (REIN) and has been authorized by participating listing Broker Members of REIN for display. REIN's listings are based upon Data submitted by its Broker Members, and REIN therefore makes no representation or warranty regarding the accuracy of the Data. All users of REIN's listings database should confirm the accuracy of the listing information directly with the listing agent.
© 2026 REIN. REIN's listings Data and information is protected under federal copyright laws. Federal law prohibits, among other acts, the unauthorized copying or alteration of, or preparation of derivative works from, all or any part of copyrighted materials, including certain compilations of Data and information. COPYRIGHT VIOLATORS MAY BE SUBJECT TO SEVERE FINES AND PENALTIES UNDER FEDERAL LAW.
REIN updates its listings on a daily basis. Data last updated: Feb 21, 2026.
This application does not include information on all of the properties available for sale at this time.




640x425s%5Bmeetingroom%5D.jpg)
640x425s%5Bmeetingroom%5D.jpg)




640x425s%5Bpooltableroom%5D.jpg)
640x425s%5Bexerciseroom%5D.jpg)

640x425s%5Bindoorpool%5D-1.jpg)



640x425s%5Bpoolarea%5D.jpg)
640x425s%5Bbythepool%5D.jpg)


640x425s%5Bboccecourts%5D.jpg)
640x425s%5Btenniscourts%5D.jpg)




640x425s%5Bentrance1%5D.jpg)
