Call us at (470) 598-3189 to learn more about this community
The Haven at Slater Mill - Douglasville, GA
- Price range: Mid $300ks - High $400ks
- Total homes: 80 (3 for sale)
- Home types: Attached
- New or resale: Resale Homes Only
- Builder: Jim Chapman Communities
- Years built: 2007 - 2020
- Age restrictions: 55+
- Gated: Yes
- Activity director: Yes
About The Haven at Slater Mill
The Haven at Slater Mill is a quaint active adult community with about 80 attached homes built by Jim Chapman Communities. This 55+ community is located approximately 20 miles west of Atlanta. The Haven at Slater Mill is a great maintenance-free ranch townhome community with a clubhouse and amenities in a small community setting.
The Haven at Slater Mill Amenities
The community clubhouse is the ideal gathering place for residents at The Haven at Slater Mill. Active adults can enjoy the 2,400 square-foot clubhouse that features a wide variety of amenities that appeal to adults 55 and better. Active adults can stay fit by visiting the exercise room or hanging out with neighbors in hobby and game room and playing cards.
Homeowners can enjoy the outdoor amenities as well. They can go for a swim at the outdoor pool, relax on the veranda, or enjoy scenic strolls along the community's walking trails. Residents can spend time outdoors and get some fresh air while appreciating the beauty of The Haven at Slater Mill.
The Haven at Slater Mill Homes & Real Estate
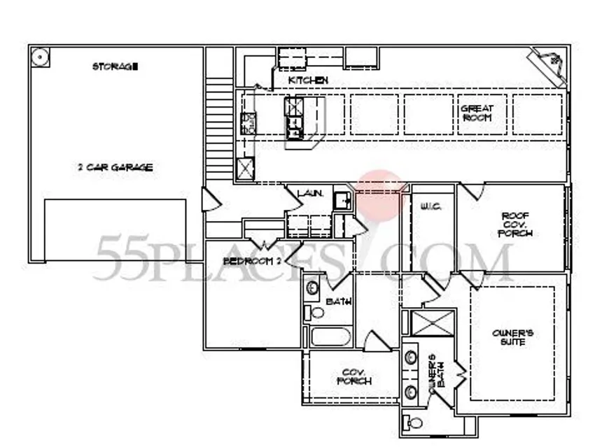
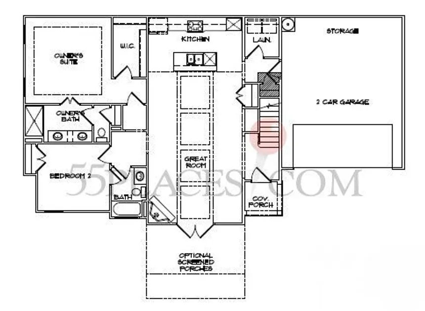
The Haven at Slater Mill offers 80 ranch quadraplex townhomes ranging from 1,340 to nearly 2,375 square feet. Each unit includes two or three bedrooms, two or three bathrooms, and an attached two-car garage. These attached homes feature spacious master suites, a bonus room, no-step entry, open floor plans, and elegant trim designs.
All homes are composed of brick and stone construction with vaulted ceilings and optional screened porches. Jim Chapman Communities began construction in this community in 2007 and is a semi-custom builder allowing homeowners to moderately customize their home designs. Attached homes are available as new construction and resale.
The Haven at Slate Mill Lifestyle
Active adults have more time to enjoy themselves and participate in fun activities and clubs because of the homeowners' association (HOA). The HOA takes care of the hassles of home maintenance such as lawn mowing, irrigation, and home exterior maintenance. The HOA fee includes curbside trash pickup service, landscape maintenance, termite treatment bond, fence and gate maintenance, common area street lighting, street and driveway maintenance, and pool and clubhouse maintenance.
While the HOA takes care of home maintenance duties, adults 55 and better get to join several neighborhood clubs and interest groups at The Haven at Slater Mill. There are book clubs, travel clubs, game clubs, card clubs, holiday parties, pot luck dinners, and movie nights that keep 55+ residents entertained daily. Some of these clubs meet regularly and there are also community parties and events hosted in the clubhouse throughout the year.
Area
The Haven at Slater Mill is situated just off of I-20 west of Atlanta in Douglas County. It is approximately 20 miles from Atlanta and Atlanta's Hartsfield-Jackson International Airport. The location is very convenient to shopping like Arbor Place Mall. Nearby recreation includes Cedar Mountain Park and Chapel Hills Golf Course. Douglas Wellstar Hospital is only 5 minutes away and several churches, a fire station, public library, and post office are nearby as well. Living in The Haven at Slater Mill has everything homeowners want or need within an active adult lifestyle community in Douglasville, Georgia.
The Haven at Slater Mill Models
Page
Showing 9 Models with All Sizes for All Collections
Page
The Haven at Slater Mill Amenities
The following amenities are available to The Haven at Slater Mill - Douglasville, GA residents:
- Clubhouse/Amenity Center
- Fitness Center
- Outdoor Pool
- Hobby & Game Room
- Walking & Biking Trails
- Demonstration Kitchen
- Outdoor Patio
- Multipurpose Room
- Lounge
The Haven at Slater Mill Clubs, Groups, Activities & Classes
There are plenty of activities available in The Haven at Slater Mill. Here is a sample of some of the clubs, activities and classes offered here.
- Book Club
- Card Club
- Community Parties
- Fitness Programs
- Game club
- Holiday Parties
- Movie Nights
- Pot Luck Dinners
- Supper Club
- Travel Club
The Haven at Slater Mill
Homes for Sale in The Haven at Slater Mill
We don't see any homes available at this time, but call one of our local community experts to get more information on availability in this community. (800) 928-2055
Homes for Sale in The Haven at Slater Mill
We don't see any homes available at this time, but call one of our local community experts to get more information on availability in this community. (800) 928-2055
The listings data displayed on this medium comes in part from the Real Estate Information Network Inc. (REIN) and has been authorized by participating listing Broker Members of REIN for display. REIN's listings are based upon Data submitted by its Broker Members, and REIN therefore makes no representation or warranty regarding the accuracy of the Data. All users of REIN's listings database should confirm the accuracy of the listing information directly with the listing agent.
© 2026 REIN. REIN's listings Data and information is protected under federal copyright laws. Federal law prohibits, among other acts, the unauthorized copying or alteration of, or preparation of derivative works from, all or any part of copyrighted materials, including certain compilations of Data and information. COPYRIGHT VIOLATORS MAY BE SUBJECT TO SEVERE FINES AND PENALTIES UNDER FEDERAL LAW.
REIN updates its listings on a daily basis. Data last updated: Mar 28, 2026.
This application does not include information on all of the properties available for sale at this time.
Models in The Haven at Slater Mill
2-3 Beds
2-3 Baths
1,340 Sq Ft
2-Car Garage
2-3 Beds
2-3 Baths
1,510 Sq Ft
2-Car Garage
Amenities
- Clubhouse/Amenity Center
- Fitness Center
- Outdoor Pool
- Hobby & Game Room
- Walking & Biking Trails
- Demonstration Kitchen
Lifestyle
- Book Club
- Card Club
- Community Parties
- Fitness Programs
- Game club
- Holiday Parties
Reviews
The Haven at Slater Mill FAQs
The average price of homes in The Haven at Slater Mill is around $325,000.
In The Haven at Slater Mill, there are attached homes built between 2007 and 2020.
At The Haven at Slater Mill, you can enjoy amenities such as the Clubhouse/Amenity Center, Fitness Center, Outdoor Pool, Hobby & Game Room, Walking & Biking Trails, Demonstration Kitchen, Outdoor Patio, Multi-Purpose/Meeting Rooms, and Lounge.
Yes! The full-time activities director will help plan events for various social clubs and special interest groups. These include Book Club, Card Club, Community Parties, Fitness Programs, Game club, Holiday Parties, Movie Nights, Pot Luck Dinners, Supper Club, and Travel Club.
I would like to request more info
The information on this page is aggregated from third-party sources and presented as-is for your convenience. It has not been verified or approved by the developer or homeowners association. 55places.com does not guarantee the accuracy or completeness of information or assume any liability for its use. 55places.com is not affiliated with the builder, developer, or HOA of any communities displayed on this website.
55places.com is not affiliated with the developer(s) or homeowners association of The Haven at Slater Mill. The information you submit is distributed to a 55places.com Partner Agent, who is a licensed real estate agent. The information regarding The Haven at Slater Mill has not been verified or approved by the developer or homeowners association. Please verify all information prior to purchasing. 55places.com is not responsible for any errors regarding the information displayed on this website.
The listings data displayed on this medium comes in part from the Real Estate Information Network Inc. (REIN) and has been authorized by participating listing Broker Members of REIN for display. REIN's listings are based upon Data submitted by its Broker Members, and REIN therefore makes no representation or warranty regarding the accuracy of the Data. All users of REIN's listings database should confirm the accuracy of the listing information directly with the listing agent.
© 2026 REIN. REIN's listings Data and information is protected under federal copyright laws. Federal law prohibits, among other acts, the unauthorized copying or alteration of, or preparation of derivative works from, all or any part of copyrighted materials, including certain compilations of Data and information. COPYRIGHT VIOLATORS MAY BE SUBJECT TO SEVERE FINES AND PENALTIES UNDER FEDERAL LAW.
REIN updates its listings on a daily basis. Data last updated: Mar 28, 2026.
This application does not include information on all of the properties available for sale at this time.





