Call us at (484) 759-1774 to learn more about this community
The Woods at Rock Raymond - Downingtown, PA
- Price range: Low $400ks
- Total homes: 120
- Home types: Attached
- New or resale: Resale Homes Only
- Builder: Weaver Homes
- Years built: 2005 - 2017
- Age restrictions: 55+
- Gated: No
- Activity director: Yes
About The Woods at Rock Raymond
The Woods at Rock Raymond is a wonderful 55+ community ideally located in Chester County, Pennsylvania. Homebuyers can find a low-maintenance townhome that meets their size and style requirements. The Woods at Rock Raymond is a picturesque neighborhood that backs up to untouched wooded areas. This age-restricted neighborhood in Downingtown offers a tight-knit sense of community for its active adult homeowners.
The Woods at Rock Raymond Amenities
The Woods at Rock Raymond is a neighborhood that encourages residents to enjoy the great outdoors with its beautifully landscaped streets. Though there is no on-site clubhouse, residents can utilize the lighted tree-lined walking trail to exercise on a nice day. The wooded areas that surround the community also include nature walking paths.
The Woods at Rock Raymond Homes & Real Estate
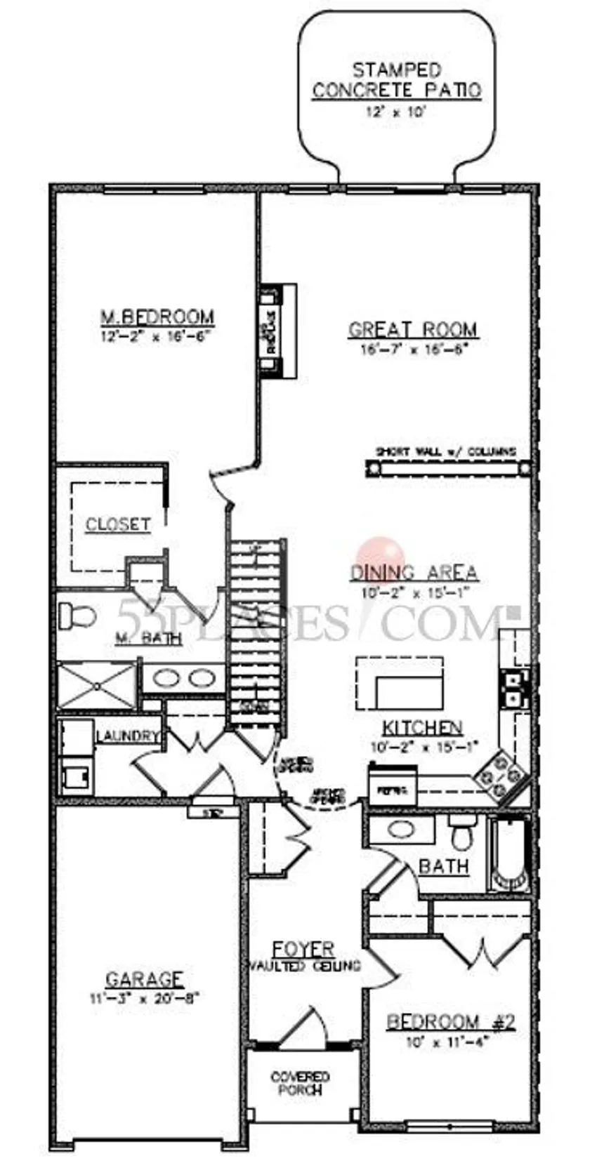
Homebuyers can find a new construction or previously owned townhome offered in eight unique models. Customizable floor plans range in size from 1,465 to 2,181 square feet with two to three bedrooms and two or two-and-a-half bathrooms. Some units include a one-car garage while other units include a two-car garage.
The attached homes throughout The Woods at Rock Raymond include desirable design features like first-floor master suites, maintenance-free siding, and brick accents. Additional standard features include full eight-foot basements, dramatic nine-foot first-floor ceilings, and hardwood floors in the foyer.
The Woods at Rock Raymond Lifestyle
Residents of The Woods at Rock Raymond enjoy owning a lock-and-leave home where they can come and go as they please. Homeowners never have to worry about landscaping and lawn maintenance as well as snow removal and exterior-building maintenance because it's handled by a professional management company. This maintenance-free homeownership gives residents more time to explore all that Chester County has to offer.
Area
The Woods at Rock Raymond is located in Downingtown near major roadways and public transportation. City Center Philadelphia is about 40 miles east and accessible via Downingtown’s SEPTA train, which offers senior rates.
Closer to home, seven parks throughout the area are available for hiking, biking, sailing, and picnicking. Golf enthusiasts will be pleased to know that they’re near Ingleside Golf Club, Downingtown Country Club, and Whitford Country Club. Downingtown is a wonderful city that has plenty of restaurants, grocery stores, public libraries, and access to medical facilities. Active adults will love The Woods at Rock Raymond for its thoughtfully designed homes in Chester County, Pennsylvania.
The Woods at Rock Raymond Models
Page
Showing 8 Models with All Sizes for All Collections
Page
The Woods at Rock Raymond Amenities
The following amenities are available to The Woods at Rock Raymond - Downingtown, PA residents:
- Walking & Biking Trails
- Parks & Natural Space
The Woods at Rock Raymond Clubs, Groups, Activities & Classes
There are plenty of activities available in The Woods at Rock Raymond. Here is a sample of some of the clubs, activities and classes offered here.
The Woods at Rock Raymond
Homes for Sale in The Woods at Rock Raymond
We don't see any homes available at this time, but call one of our local community experts to get more information on availability in this community. (484) 759-1774
Homes for Sale in The Woods at Rock Raymond
We don't see any homes available at this time, but call one of our local community experts to get more information on availability in this community. (484) 759-1774
The listings data displayed on this medium comes in part from the Real Estate Information Network Inc. (REIN) and has been authorized by participating listing Broker Members of REIN for display. REIN's listings are based upon Data submitted by its Broker Members, and REIN therefore makes no representation or warranty regarding the accuracy of the Data. All users of REIN's listings database should confirm the accuracy of the listing information directly with the listing agent.
© 2026 REIN. REIN's listings Data and information is protected under federal copyright laws. Federal law prohibits, among other acts, the unauthorized copying or alteration of, or preparation of derivative works from, all or any part of copyrighted materials, including certain compilations of Data and information. COPYRIGHT VIOLATORS MAY BE SUBJECT TO SEVERE FINES AND PENALTIES UNDER FEDERAL LAW.
REIN updates its listings on a daily basis. Data last updated: Mar 15, 2026.
This application does not include information on all of the properties available for sale at this time.
Models in The Woods at Rock Raymond
2 Beds
2 Baths
1,465 Sq Ft
1-Car Garage
2 Beds
2 Baths
1,517 Sq Ft
2-Car Garage
Amenities
- Walking & Biking Trails
- Parks & Natural Space
Reviews
The Woods at Rock Raymond FAQs
The average price of homes in The Woods at Rock Raymond is around $447,916.
In The Woods at Rock Raymond, there are attached homes built between 2005 and 2017.
At The Woods at Rock Raymond, you can enjoy amenities such as the Walking & Biking Trails and Parks & Natural Space.
I would like to request more info
The information on this page is aggregated from third-party sources and presented as-is for your convenience. It has not been verified or approved by the developer or homeowners association. 55places.com does not guarantee the accuracy or completeness of information or assume any liability for its use. 55places.com is not affiliated with the builder, developer, or HOA of any communities displayed on this website.
55places.com is not affiliated with the developer(s) or homeowners association of The Woods at Rock Raymond. The information you submit is distributed to a 55places.com Partner Agent, who is a licensed real estate agent. The information regarding The Woods at Rock Raymond has not been verified or approved by the developer or homeowners association. Please verify all information prior to purchasing. 55places.com is not responsible for any errors regarding the information displayed on this website.
The listings data displayed on this medium comes in part from the Real Estate Information Network Inc. (REIN) and has been authorized by participating listing Broker Members of REIN for display. REIN's listings are based upon Data submitted by its Broker Members, and REIN therefore makes no representation or warranty regarding the accuracy of the Data. All users of REIN's listings database should confirm the accuracy of the listing information directly with the listing agent.
© 2026 REIN. REIN's listings Data and information is protected under federal copyright laws. Federal law prohibits, among other acts, the unauthorized copying or alteration of, or preparation of derivative works from, all or any part of copyrighted materials, including certain compilations of Data and information. COPYRIGHT VIOLATORS MAY BE SUBJECT TO SEVERE FINES AND PENALTIES UNDER FEDERAL LAW.
REIN updates its listings on a daily basis. Data last updated: Mar 15, 2026.
This application does not include information on all of the properties available for sale at this time.



