Call us at (501) 727-2987 to learn more about this community
Stonebrook Cove - Conway, AR
- Price range: High $200ks - High $300ks
- Total homes: 26
- Home types: Single-Family
- New or resale: New And Resale Homes
- Builder: J.C. Thornton
- Years built: 2014 - Present
- Age restrictions: 55+
- Gated: Yes
- Activity director: Yes
About Stonebrook Cove
Stonebrook Cove in Conway, Arkansas is a perfect community for people seeking a gated age-restricted neighborhood in an ideal location near Little Rock, Hot Springs, and Benton. The community is small, which makes it easy for residents to get to know their neighbors. Stonebrook Cove is an intimate 55+ community that offers low-maintenance homes, a private clubhouse and a convenient location near daily necessities.
Stonebrook Cove Amenities
Residents of Stonebrook Cove enjoy a charming private clubhouse. Here, homeowners can gather for social events, mingle with neighbors, and meet new friends. Homeowners can watch a game in the multi-purpose room or join in a game in the card room. The outdoor patio overlooks an attractive pond and is the perfect place to relax while enjoying the beautiful weather in Arkansas. A picturesque park creates a beautiful backdrop for relaxing on the patio.
Stonebrook Cove Homes & Real Estate
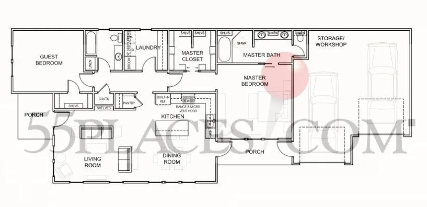
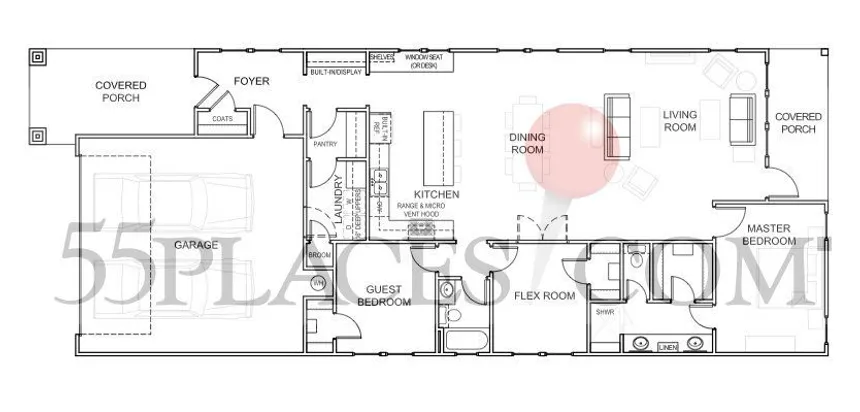
J.C. Thornton began construction of Stonebrook Cove in 2014 and once it's completed the community will be comprised of 26 single-family homes. There are seven different models that range from 1,492 to 2,130 square feet. These low-maintenance homes feature two to four bedrooms, two to three bathrooms, and an attached one or two-car garage. With open floor plans and spacious master suites, these homes are great for the active adult homebuyer.
Stonebrook Cove Lifestyle
Welcoming those who crave a low-maintenance lifestyle, this 55+ community is the perfect home for those aged 55 and better. The homeowners association covers all maintenance of the community grounds, as well as lawn care for all the homes. This leaves ample time for homeowners to relax and enjoy old hobbies and discover new ones. Being such a tight-knit community, it is not uncommon to see neighbors enjoy each other's company during cookouts or card games.
Area
Stonebrook Cove is a gated neighborhood located in Conway, Arkansas. Many exciting cultural and entertainment treasures are located within minutes of this outstanding neighborhood. Residents are conveniently located near pharmacies, grocery stores, fitness centers, shops, restaurants and medical facilities. In addition, Little Rock is less than 40 minutes away and offers many exciting attractions and an airport for traveling to distant locations. Active adults near Little Rock, Arkansas who are looking for a quiet area with a close proximity to larger cities will love living at Stonebrook Cove.
Stonebrook Cove Models
Page
Showing 7 Models with All Sizes for All Collections
Page
Stonebrook Cove Amenities
The following amenities are available to Stonebrook Cove - Conway, AR residents:
- Clubhouse/Amenity Center
- Card Room
- Lakes - Scenic Lakes & Ponds
- Parks & Natural Space
- Outdoor Patio
- Multipurpose Room
Stonebrook Cove Clubs, Groups, Activities & Classes
There are plenty of activities available in Stonebrook Cove. Here is a sample of some of the clubs, activities and classes offered here.
Stonebrook Cove
Homes for Sale in Stonebrook Cove
We don't see any homes available at this time, but call one of our local community experts to get more information on availability in this community. (800) 928-2055
Homes for Sale in Stonebrook Cove
View Homes for SaleWe don't see any homes available at this time, but call one of our local community experts to get more information on availability in this community. (800) 928-2055
The listings data displayed on this medium comes in part from the Real Estate Information Network Inc. (REIN) and has been authorized by participating listing Broker Members of REIN for display. REIN's listings are based upon Data submitted by its Broker Members, and REIN therefore makes no representation or warranty regarding the accuracy of the Data. All users of REIN's listings database should confirm the accuracy of the listing information directly with the listing agent.
© 2026 REIN. REIN's listings Data and information is protected under federal copyright laws. Federal law prohibits, among other acts, the unauthorized copying or alteration of, or preparation of derivative works from, all or any part of copyrighted materials, including certain compilations of Data and information. COPYRIGHT VIOLATORS MAY BE SUBJECT TO SEVERE FINES AND PENALTIES UNDER FEDERAL LAW.
REIN updates its listings on a daily basis. Data last updated: Mar 21, 2026.
This application does not include information on all of the properties available for sale at this time.
Models in Stonebrook Cove
2 Beds
2 Baths
1,492 Sq Ft
2-Car Garage
2 Beds
2 Baths
1,650 Sq Ft
2-Car Garage
Amenities
- Clubhouse/Amenity Center
- Card Room
- Lakes - Scenic Lakes & Ponds
- Parks & Natural Space
- Outdoor Patio
- Multipurpose Room
Reviews
Stonebrook Cove FAQs
In Stonebrook Cove, there are single-family homes built starting in 2014, with new construction still ongoing.
At Stonebrook Cove, you can enjoy amenities such as the Clubhouse/Amenity Center, Card Room, Lakes - Scenic Lakes & Ponds, Parks & Natural Space, Outdoor Patio, and Multi-Purpose/Meeting Rooms.
I would like to request more info
The information on this page is aggregated from third-party sources and presented as-is for your convenience. It has not been verified or approved by the developer or homeowners association. 55places.com does not guarantee the accuracy or completeness of information or assume any liability for its use. 55places.com is not affiliated with the builder, developer, or HOA of any communities displayed on this website.
55places.com is not affiliated with the developer(s) or homeowners association of Stonebrook Cove. The information you submit is distributed to a 55places.com Partner Agent, who is a licensed real estate agent. The information regarding Stonebrook Cove has not been verified or approved by the developer or homeowners association. Please verify all information prior to purchasing. 55places.com is not responsible for any errors regarding the information displayed on this website.
The listings data displayed on this medium comes in part from the Real Estate Information Network Inc. (REIN) and has been authorized by participating listing Broker Members of REIN for display. REIN's listings are based upon Data submitted by its Broker Members, and REIN therefore makes no representation or warranty regarding the accuracy of the Data. All users of REIN's listings database should confirm the accuracy of the listing information directly with the listing agent.
© 2026 REIN. REIN's listings Data and information is protected under federal copyright laws. Federal law prohibits, among other acts, the unauthorized copying or alteration of, or preparation of derivative works from, all or any part of copyrighted materials, including certain compilations of Data and information. COPYRIGHT VIOLATORS MAY BE SUBJECT TO SEVERE FINES AND PENALTIES UNDER FEDERAL LAW.
REIN updates its listings on a daily basis. Data last updated: Mar 21, 2026.
This application does not include information on all of the properties available for sale at this time.


