Call us at (854) 220-9098 to learn more about this community
Carillon at The Ponds - Summerville, SC
5.0
- Price range: High $200ks - High $300ks
- Total homes: 56
- Home types: Single-Family
- New or resale: Resale Homes Only
- Years built: 2013 - 2015
- Age restrictions: 55+
- Gated: No
- Activity director: No
About Carillon at The Ponds
Carillon at The Ponds in Summerville, SC is a 55+ neighborhood located within the master-planned community of The Ponds. Tucked within the natural beauty of a 1,100-acre preserve, the homesites in this 56-home rural neighborhood look out over unspoiled woodlands. Community sidewalks connect to 21 miles of picturesque nature trails, giving residents ready access to nature s bountiful terrain.
The gated community of Carillon at The Ponds contains properties featuring Lowcountry architecture designed to blend into the surrounding countryside. The quality homes feature one and two-story models by D.R. Horton with gracious entryways, wide Southern porches, and some of the premium sites have pond views and large, stately trees.
In addition to the surrounding breathtaking scenery, Carillon at The Ponds' residents can indulge in a wide variety of equally inspiring amenities, including an on-site 4,000 square-foot Farmhouse, where residents gather for a wide variety of activities, a YMCA complete with a wellness center and a full-sized gym, and at the heart of the vibrant community, an authentic outdoor amphitheater overlooking a 20-acre lake.
Carillon at The Ponds Amenities
Residents of Carillon at The Ponds enjoy all of the amenities in the 4,000 square-foot Farmhouse. This historic structure is the only surviving building from the site s rich history, which dates back to 1682. The building, believed to have been built in the 1830s, is surrounded by a gazebo, saltwater pool, and muscadine field. The Farmhouse offers residents the opportunity to visit the gardening plots and enjoy fun activities in the hobby and game room and multi-purpose rooms as well.
At the Carillon at The Ponds' 25,000 square-foot YMCA at The Ponds, residents can use cardiovascular equipment and free weights in one of the two fitness centers, partake in aerobics, use the full-size basketball court or enjoy organized sports and wellness programs. Residents must join the YMCA at The Ponds as it is not included in the community association. There is also a private pavilion designed for picnics and outdoor gatherings, and when community events are planned, such as outdoor concerts, the amphitheater overlooking the lake provides the perfect setting.
Carillon at The Ponds Homes & Real Estate
The 56 homesites in Carillon at The Ponds community feature classic South Carolina Lowcountry architecture in keeping with the rest of The Ponds community. In Carillon at The Ponds, you ll find high-quality one and two-story homes by DR Horton in nine different models, ranging from 1,460 to 2,991 square-feet and featuring three to five bedrooms, as well as two to three-and-a-half bathrooms. These livable floor plans include a wide variety of luxurious modern amenities, such as spacious master suites, covered porches, gracious entryways, wide porches, breakfast areas, attics and bonus rooms.
Carillon at The Ponds Lifestyle
Life at Carillon at The Ponds is a daily adventure offering myriad opportunities to enjoy all that the nature-inspired community has to offer. Residents indulge in a wide variety of activities on a regular basis, from gathering with friends and family to hear live music at the amphitheater, to taking a quiet stroll along the wilderness trails, or swimming in the pool or enjoying a good book on the patio. On the 11 acres of grassy meadows, it s common to find residents enjoying an exhilarating soccer game or flying a kite. And when a daytrip is in order, residents can leave the gates to enjoy a wide variety of exciting destinations, including historic Summerville and Charleston.
The YMCA at The Ponds offers an extensive lineup of exercise classes. Members can join a variety of classes and activities that focus on dancing, kickboxing, Pilates, yoga, Zumba, cycling, basketball and more. The Ponds community also hosts community events throughout the year like craft fairs, model boat races, festivals, and holiday parties.
Area
Residents desiring a day outside of the community to explore have a wide variety of options from which to choose, including Historic Summerville, with its rich post-American Revolutionary War history. A little further away, residents also have plenty to choose from in Charleston, including live theater and America s first museum dating back to 1773, The Charleston Museum. With so much to do and see around the area, purchasing a home for sale within Carillon at The Ponds in Summerville, SC is ideal for 55+ homebuyers.
Carillon at The Ponds Models
Page
Showing 9 Models with All Sizes for All Collections
Page
Carillon at The Ponds Amenities
The following amenities are available to Carillon at The Ponds - Summerville, SC residents:
- Clubhouse/Amenity Center
- Fitness Center
- Outdoor Pool
- Aerobics & Dance Studio
- Indoor Walking Track
- Hobby & Game Room
- Walking & Biking Trails
- Tennis Courts
- Softball/Baseball Field
- Basketball Court
- Lakes - Scenic Lakes & Ponds
- Outdoor Amphitheater
- Gardening Plots
- Parks & Natural Space
- Playground for Grandkids
- Outdoor Patio
- Picnic Area
- Multipurpose Room
- Locker Rooms
Carillon at The Ponds Clubs, Groups, Activities & Classes
There are plenty of activities available in Carillon at The Ponds. Here is a sample of some of the clubs, activities and classes offered here.
- Adult Jazz
- Adult Tap
- Annual Craft Fair
- Arthritis Exercise
- Bunco
- Camping
- Cardio Class
- Chisel Class
- Flowertown Festival
- Harvest Fest
- July 4th Concert & Fireworks
- Kickboxing
- Model Boat Races
- Outdoor Concerts
- Oyster Roast
- Pick-Up Basketball
- Pilates
- Prayer Walks
- Silver Sneakers
- Southern Flame Festival
- Spin Class
- The Ponds Fall Fest
- Yoga
- Zumba
Carillon at The Ponds
Beautiful home in small community with nicely treed lots. Our home has had minimal problems, most of which have been corrected by builder. Many wonderful neighbors and community is fairly close with various gazebo events. HOA fees are reasonable and HOA itself is responsible and as transparent as possible.
The house is so well insulated that you do not hear much at all from the construction still going on until you step outside. I just love my home. The only thing that would have been better would have been if we had come to the development earlier and could have picked what was in the house. But the lot was the biggest selling feature with the house itself being second. But that as it may be we love it. Not perfect but we can deal with things as they are. All the neighbors we have met so far are so very friendly I can’t wait to spend time with them.
The Ponds is a paradise for us. We walk our dogs several miles every day and the community gives us the choice of scenic neighborhood strolls or hikes in the woods and around the lakes. Can’t wait to purchase kayaks so we can enjoy the water. It’s hard to stay indoors, even in our gorgeous new house.
Homes for Sale in Carillon at The Ponds
We don't see any homes available at this time, but call one of our local community experts to get more information on availability in this community. (800) 928-2055
Homes for Sale in Carillon at The Ponds
We don't see any homes available at this time, but call one of our local community experts to get more information on availability in this community. (800) 928-2055
The listings data displayed on this medium comes in part from the Real Estate Information Network Inc. (REIN) and has been authorized by participating listing Broker Members of REIN for display. REIN's listings are based upon Data submitted by its Broker Members, and REIN therefore makes no representation or warranty regarding the accuracy of the Data. All users of REIN's listings database should confirm the accuracy of the listing information directly with the listing agent.
© 2026 REIN. REIN's listings Data and information is protected under federal copyright laws. Federal law prohibits, among other acts, the unauthorized copying or alteration of, or preparation of derivative works from, all or any part of copyrighted materials, including certain compilations of Data and information. COPYRIGHT VIOLATORS MAY BE SUBJECT TO SEVERE FINES AND PENALTIES UNDER FEDERAL LAW.
REIN updates its listings on a daily basis. Data last updated: Feb 19, 2026.
This application does not include information on all of the properties available for sale at this time.
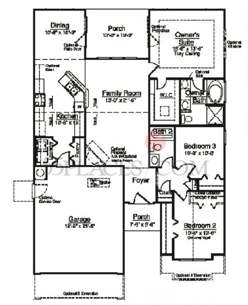
Models in Carillon at The Ponds
3 Beds
2 Baths
1,460 Sq Ft
2-Car Garage
3 Beds
2 Baths
1,634 Sq Ft
2-Car Garage
Amenities
- Clubhouse/Amenity Center
- Fitness Center
- Outdoor Pool
- Aerobics & Dance Studio
- Indoor Walking Track
- Hobby & Game Room
Lifestyle
- Adult Jazz
- Adult Tap
- Annual Craft Fair
- Arthritis Exercise
- Bunco
- Camping
Reviews
Carillon at The Ponds FAQs
In Carillon at The Ponds, there are single-family homes built between 2013 and 2015.
At Carillon at The Ponds, you can enjoy amenities such as the Clubhouse/Amenity Center, Fitness Center, Outdoor Pool, Aerobics & Dance Studio, Indoor Walking Track, Hobby & Game Room, Walking & Biking Trails, Tennis Courts, Softball/Baseball Field, and Basketball Court.
Yes! Residents enjoy an active lifestyle by participating in a variety of social clubs and special interest groups. These include Adult Jazz, Adult Tap, Annual Craft Fair, Arthritis Exercise, Bunco, Camping, Cardio Class, Chisel Class, Flowertown Festival, and Harvest Fest.
I would like to request more info
The information on this page is aggregated from third-party sources and presented as-is for your convenience. It has not been verified or approved by the developer or homeowners association. 55places.com does not guarantee the accuracy or completeness of information or assume any liability for its use. 55places.com is not affiliated with the builder, developer, or HOA of any communities displayed on this website.
55places.com is not affiliated with the developer(s) or homeowners association of Carillon at The Ponds. The information you submit is distributed to a 55places.com Partner Agent, who is a licensed real estate agent. The information regarding Carillon at The Ponds has not been verified or approved by the developer or homeowners association. Please verify all information prior to purchasing. 55places.com is not responsible for any errors regarding the information displayed on this website.
The listings data displayed on this medium comes in part from the Real Estate Information Network Inc. (REIN) and has been authorized by participating listing Broker Members of REIN for display. REIN's listings are based upon Data submitted by its Broker Members, and REIN therefore makes no representation or warranty regarding the accuracy of the Data. All users of REIN's listings database should confirm the accuracy of the listing information directly with the listing agent.
© 2026 REIN. REIN's listings Data and information is protected under federal copyright laws. Federal law prohibits, among other acts, the unauthorized copying or alteration of, or preparation of derivative works from, all or any part of copyrighted materials, including certain compilations of Data and information. COPYRIGHT VIOLATORS MAY BE SUBJECT TO SEVERE FINES AND PENALTIES UNDER FEDERAL LAW.
REIN updates its listings on a daily basis. Data last updated: Feb 19, 2026.
This application does not include information on all of the properties available for sale at this time.













