Call us at (484) 939-8084 to learn more about this community
Rose Pointe - Warminster, PA
- Price range: High $400ks - Mid $500ks
- Total homes: 24 (2 for sale)
- Home types: Attached
- New or resale: New Homes Only
- Builder: County Builders
- Years built: 2021 - Present
- Age restrictions: 55+
- Gated: No
- Activity director: Yes
About Rose Pointe
Rose Pointe is a new 55+ community located in Warminster, PA. With development beginning in 2021, this community will consist of 24 low-maintenance attached homes with thoughtfully designed floor plans and plenty of options for homebuyers. Residents will also be a short distance from shopping, healthcare, and local attractions. Homeowners will also be able to visit Philadelphia and Philadelphia International Airport within an hour, providing even more opportunity to explore.
Homebuyers looking for new active adult communities in Warminster, PA will enjoy all Rose Pointe has to offer.
Rose Pointe Amenities & Lifestyle
Residents of Rose Pointe will enjoy a low-maintenance lifestyle thanks to a homeowners’ association that will provide services such as lawn care and snow removal. With additional leisure time, homeowners can spend quality time with family or discover new hobbies with neighbors.
Rose Pointe Homes & Real Estate
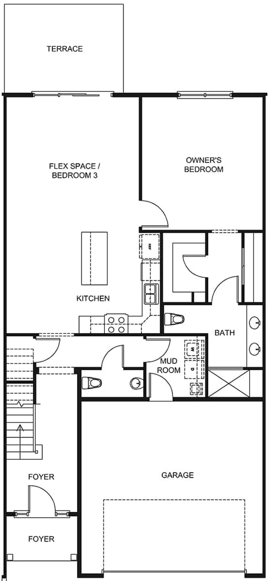
County Builders began the development of Rose Pointe in 2021. The community will consist of 24 attached homes in three designs: The Austin, The Carolina, and The Portland.
These models will have two to three bedrooms, two-and-a-half bathrooms, and attached two-car garages. Notable features of each floor plan include open-concept living areas, gourmet kitchens, lofts, vaulted ceilings, and covered terraces. Certain homes will also include upgrades, such as a sunroom and den.
Rose Pointe Surrounding Area
Rose Pointe will be in Warminster, PA, putting residents in quick reach of daily needs and fun activities.
Residents will also be near grocery stores, such as GIANT Food Stores, Grocery Outlet, and Wegmans, as well as Target and Dollar Tree. Pharmacy needs can be met at CVS and Walgreens. Members of the community looking to stay active will be able to do so at nearby gyms, including Anytime Fitness and Planet Fitness.
Rose Pointe will also be near multiple healthcare providers, such as Nazareth Hospital, Holy Redeemer Hospital, Chestnut Hill Hospital, Temple University Hospital, and Suburban Community Hospital.
When in search of entertainment and dining options, residents will be able to travel down York Road to find multiple restaurants, bars, and shops. There will also be a variety of attractions in the area, including Independence National Historical Park, Adventure Aquarium, Michener Art Museum, the Glencairn Museum, and The Kimmel Center. Sports fans can catch football games at Lincoln Financial Field and baseball games at Citizens Bank Park.
Nature lovers who want to get outdoors will have plenty of opportunities to do so. Rose Pointe will be close to multiple parks and greenspaces, including Warminster Community Park, Palomino Park, Mill Creek Park, Devonshire Court Township Park, and Peace Valley Nature Center. Golfers will also have multiple courses to play, such as Five Pounds Golf Club, Lookaway Golf Club, The Union League Golf Club at Torresdale, North Hills Country Club, and Squires Golf Club.
Members of the community interested in visiting the nearby metropolitan area will be in luck. Rose Pointe will be 40 minutes from Philadelphia and all this city has to offer. For longer trips, Philadelphia International Airport will be just under 50 minutes away.
Rose Pointe Models
Showing 3 Models with All Sizes for All Collections
Rose Pointe Amenities
Check back soon for more information on all of the amenities in Rose Pointe - Warminster, PA.
Rose Pointe Clubs, Groups, Activities & Classes
There are plenty of activities available in Rose Pointe. Here is a sample of some of the clubs, activities and classes offered here.
Rose Pointe
Homes for Sale in Rose Pointe
New construction: Discover your dream retirement home in our 55+ communities! While new construction homes may not appear in the MLS, there are fantastic properties available. Contact us today to speak with our expert real estate agents and explore the hidden gems waiting for you! Don't miss out on your perfect home—reach out now!
Homes for Sale in Rose Pointe
New construction: Discover your dream retirement home in our 55+ communities! While new construction homes may not appear in the MLS, there are fantastic properties available. Contact us today to speak with our expert real estate agents and explore the hidden gems waiting for you! Don't miss out on your perfect home—reach out now!
The listings data displayed on this medium comes in part from the Real Estate Information Network Inc. (REIN) and has been authorized by participating listing Broker Members of REIN for display. REIN's listings are based upon Data submitted by its Broker Members, and REIN therefore makes no representation or warranty regarding the accuracy of the Data. All users of REIN's listings database should confirm the accuracy of the listing information directly with the listing agent.
© 2026 REIN. REIN's listings Data and information is protected under federal copyright laws. Federal law prohibits, among other acts, the unauthorized copying or alteration of, or preparation of derivative works from, all or any part of copyrighted materials, including certain compilations of Data and information. COPYRIGHT VIOLATORS MAY BE SUBJECT TO SEVERE FINES AND PENALTIES UNDER FEDERAL LAW.
REIN updates its listings on a daily basis. Data last updated: May 20, 2026.
This application does not include information on all of the properties available for sale at this time.
Models in Rose Pointe
2-3 Beds
2.5 Baths
2-Car Garage
2-3 Beds
2.5 Baths
2-Car Garage
Reviews
Rose Pointe FAQs
The average price of homes in Rose Pointe is around $619,113.
In Rose Pointe, there are attached homes built starting in 2021, with new construction still ongoing.
I would like to request more info
The information on this page is aggregated from third-party sources and presented as-is for your convenience. It has not been verified or approved by the developer or homeowners association. 55places.com does not guarantee the accuracy or completeness of information or assume any liability for its use. 55places.com is not affiliated with the builder, developer, or HOA of any communities displayed on this website.
55places.com is not affiliated with the developer(s) or homeowners association of Rose Pointe. The information you submit is distributed to a 55places.com Partner Agent, who is a licensed real estate agent. The information regarding Rose Pointe has not been verified or approved by the developer or homeowners association. Please verify all information prior to purchasing. 55places.com is not responsible for any errors regarding the information displayed on this website.
The listings data displayed on this medium comes in part from the Real Estate Information Network Inc. (REIN) and has been authorized by participating listing Broker Members of REIN for display. REIN's listings are based upon Data submitted by its Broker Members, and REIN therefore makes no representation or warranty regarding the accuracy of the Data. All users of REIN's listings database should confirm the accuracy of the listing information directly with the listing agent.
© 2026 REIN. REIN's listings Data and information is protected under federal copyright laws. Federal law prohibits, among other acts, the unauthorized copying or alteration of, or preparation of derivative works from, all or any part of copyrighted materials, including certain compilations of Data and information. COPYRIGHT VIOLATORS MAY BE SUBJECT TO SEVERE FINES AND PENALTIES UNDER FEDERAL LAW.
REIN updates its listings on a daily basis. Data last updated: May 20, 2026.
This application does not include information on all of the properties available for sale at this time.
